タイル門柱と平板アプローチが重厚感のある新築シンプル オープン外構
プラン内容 No.3334
※データは見積当時のものです
- 見積参考価格
- 370 万円
- 工事面積
- 74m 2
- 工事種別
- 新築外構
- 地形
- 旗竿地
- 方位
- 西
- 車の台数
- 2台
- 登録日
- 2025-08-01
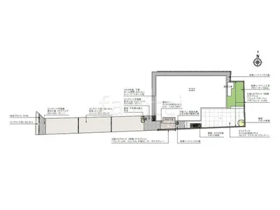
イメージパース・図面





コメント
大判タイル タカショー セラレバンテのタイル門柱を採用し、重厚感と上質さを兼ね備えた門まわりに仕上げました。 アプローチには平板 東洋工業 フラグペイブを敷き、歩きやすくデザイン性の高い仕上がりに。 お庭にはタイルデッキを設け、目隠しフェンス グローベン プラドoneを設置することで、メンテナンス性に優れつつプライバシーを確保した快適な空間を作りました。





