多数の植栽が美しい新築和モダン オープン外構
プラン内容 No.2151
※データは見積当時のものです
- 見積参考価格
- 545 万円
- 工事面積
- 285m 2
- 工事種別
- 新築外構
- 地形
- 変形
- 方位
- 北東
- 車の台数
- 2台
- 登録日
- 2023-07-30
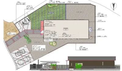
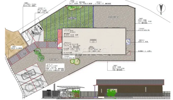
イメージパース・図面







コメント
玄関アプローチは平板 ユニソン リビオを敷き詰め、水はけ良く歩きやすい仕上がりです。シマトネリコ、オリーブ、ヤマボウシ、ソヨゴといった、たくさんのシンボルツリーが敷地内に植えられ、自然の中で生活しているような素敵な外構になりました。







