0120-644-128 10:00~18:00 水・木 定休日
※データは見積当時のものです
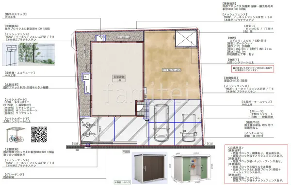
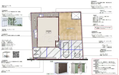
玄関アプローチ 駐車場ガレージ床 土間コンクリート 機能門柱 施主様支給品 取付 サイクルポート 境界フェンス塀 CBブロック積 お庭 真砂土敷き 整地 物置
立面図
平面図
見積
施工前