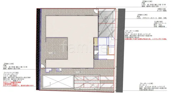
新築シンプル オープン外構

プラン内容 No.1925

※データは見積当時のものです

見積参考価格
245 万円
工事面積
186m 2
工事種別
新築外構
地形
四角
車の台数
1台
登録日
2022-07-19

イメージパース・図面